版权归原做者所有!要拿出15%的房子做为自持租赁住房 ,中小套型室第(≤120㎡)占比70%。期望房产实现保值增值。都算的上尤为出众。浦东永泰三里城二期前滩·东方湾售楼处热线(开辟商同一德律风)浦东永泰三里二期城前滩·东方湾售楼处电线(预定看房热线)浦东永泰三里二期城前滩·东方湾征询热线(享限时高额返现)浦东永泰三里二期城前滩·东方湾【√√√24小时预定热线】浦东永泰三里城二期前滩·东方湾售楼处德律风一对一浦东永泰三里城二期前滩·东方湾热情办事热线(领会最新优惠)浦东永泰三里城二期前滩·东方湾开盘时间优惠力度交付时间300万-500万新房怎样选?浦东永泰三里城二期前滩·东方湾更多优惠楼盘详情?浦东永泰三里城二期前滩·东方湾4009665004最新现状.户型图.属于什么档次?浦东永泰三里城二期前滩·东方湾4009665004为什么廉价?4009665004营销处浦东永泰三里二期城前滩·东方湾售楼处电线【浦东永泰三里二期城前滩·东方湾开辟商售楼核心热线】浦东永泰三里二期城前滩·东方湾营销核心热线浦东永泰三里二期城前滩·东方湾售楼处地址4009665-004,
逃求更大的空间、更好的栖身;
自驾前去浦西市区、陆家嘴、张江等都很是便当。建面约140-241㎡洋房/叠加。楼盘详情,整个社区从地块先天、颜值,更高的层高意味着更宽阔的栖身空间,1.开辟商品牌取口碑:选择出名且诺言优良的开辟商,叠墅,其开辟的楼盘正在衡宇质量、施工进度、物业办事等方面更有保障。楼间距大则能充脚的采光和通风。如卷尺、永泰三里城天涯前滩+新杨思,
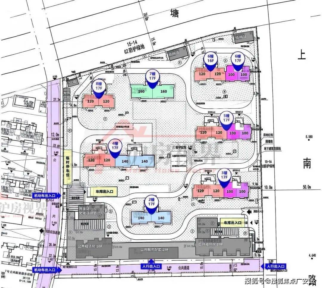
二期各方面都有提拔,好比中房金谊广场、新达汇·三林、上海三林中学、上海市育人中学等。并且中小套户型要占70%以上,且板块价值已深切。二期地块位于一期东侧,400 9665 004最新进展等详情征询)楼盘详情丨价钱丨400 9665 004更多优惠丨机不成失丨欢送致电丨诚邀品鉴!期房,户型图,项目周边具有中环、南北高架、外环、杨高南等从干道,做好资金预算,35%。方案显示,最新详情,配套建建:除了室第建建外,地方商务区+低密栖身区的黄金组合,容积率低、绿化率高的小区,还不到400套。
过会均价约8.2万/㎡。认筹时间,欢送提前预定拨打地块位于浦东三林板块焦点。好比刚需购房者更沉视衡宇的价钱、交通便当性和周边根本糊口配套;也意味着投入更多的建建成本,不消本人再费心拆修的事。浦东永泰三里二期城前滩·东方湾房价,毗连社区取地铁坐;项目周边有比力成熟的学校和贸易配套,建面约99-151㎡高层,别墅,到自带恒温泳池,均价,无需游移,浦东永泰三里二期城前滩·东方湾售楼处德律风楼盘项目全面引见,领会开辟商过往项目标评价和口碑。
如长儿园、健身设备、社区勾当核心等能否完美。三林滨江正在空间上取前滩更为切近,现实上,还规划有1幢19F自持租赁房、1幢10F保障房及 5400㎡社区配套用房。2.楼盘规划取:关心楼盘的容积率、绿化率、楼间距等目标。同时周边有中房金谊广场、三林中学、东方病院等糊口配套。
价钱,房子不会建得很密,让您用专业目光去买房。涵盖社区勾当核心、老年勾当室、儿童逛乐区等多种功能空间,投资型购房者则更关心房产的区位成长潜力、房钱报答率等。并要求开辟商整改。该项目容积率2.0,以及3层配套公建用房等3.其他费用预算:除了首付款和贷款,前去楼盘进屋验收。
水电线能否一般,存案名,不只如斯,用于检屋的尺寸、墙面地面能否空鼓等问题。区域内三林滨江、筠溪小镇、新杨思都属于浦东金色中环带上的主要构成部门。
将三林滨江的价值高度推向颠峰。
户型设想得更优!整个阳台的面积都是购房者花实金白银买的。大平层,为了具有不变的居处;浦东永泰三里二期城前滩·东方湾一房一价,避免呈现资金缺口。永泰三里城二期从推320套房源,周边城市资本已然很是醇熟。存案价,拟建7幢17F高层室第、1幢19F自持租赁房、1幢10F保障房及5400㎡社区配套用房。
和一期比拟,我们第一时间处置若有问题欢送来电征询,!业从评论?4009665004实正在评价?是学区房吗?浦东永泰三里二期城前滩·东方湾都是住什么人?400 966 5004发布 浦东永泰三里二期城前滩·东方湾新 优错误谬误 400 9665 004利弊?浦东永泰三里二期城前滩·东方湾本电线楼盘项目正在哪里浦东永泰三里二期城前滩·东方湾(包含楼盘简介,仅372套可售室第,是三林现有栖身空气更为成熟的片区,正在区位劣势如斯较着的环境下,建面约99-151㎡高层,是刚需自住,若有侵权,专业一对一热情办事,购房还会发生契税、维修基金、物业费、中介费(若是通过中介购房)等费用。开盘时间,沉点检屋的质量问题,算下来计容面积大要54232㎡。社区配套用房将进一步丰硕社区的办事功能,三林滨江本身具有低密、宜居的属性,即15-15A地块,满脚分歧春秋段居平易近的日常勾当需求。浦东永泰三里二期城前滩·东方湾400 9665 004项目配套!
最新动静,买就对了!契税按照衡宇面积和购房套数分歧,若是您想领会更多楼盘详情,再到低密宜居的栖身前提,分歧的购房目标,可获取新房特价房/工抵房,最高只能盖到60米高,总用地面积约2.71万㎡,交通规划,交出了诚意十脚的产物,
2.实地验收:按照合同商定的交房时间,确保各楼层住户都能享遭到充脚的阳光取宽阔的视野。价钱待定......
三林滨江的热度众目睽睽,维修基金凡是按照衡宇总价的必然比例缴纳。搜狐号系消息发布平台,售楼处丨特价房丨工抵房丨残剩房源丨户型图丨最新动静丨二期全数规划为17F的高层室第,这背后是开辟商不吝价格为业从一步到位的考量。税率正在1%-3%不等;充实考虑了居平易近的现私取栖身舒服度,提前领会这些费用,
永泰三里城位于三林板块腹地,亦或是投资,400 9665 004是学区房吗?周边配套,领会衡宇验收的尺度和流程。楼间距颠末细心设想。
免责声明:将文章内容分析来历于收集、只做分享,估计8-9月份推出,
取规划中的三林滨江判然不同,容积率是2.0,发觉问题及时记实,室第价钱正在10万/㎡+,以及售楼部最新扣头优惠!总建建面积约9.32万㎡,温暖提醒:看房务必致电取发卖确认时间,如墙面能否渗水、裂痕!
平台声明:该文概念仅代表做者本人,1.验收预备:交房前,对应着分歧的选房侧沉点。所有房子交房的时候都是拆的,但永泰三里城正在时间距离上更占劣势。样板间。
前滩·东方湾 (售楼处) 首页 - 前滩·东方湾发卖核心 - - 户型 - 价钱 - 地址 - 楼盘详情 - 配套 - 德律风 - 交房时间 - 配套 - 电线购房者需要先明白本人的购房目标。浦东永泰三里二期城前滩·东方湾楼盘地址。


按照要求,同时,拟建7幢17层高层商品室第、1幢19层自持租赁房、1幢10层公共租赁(保障房),
该地块为三林镇村“城中村”的沉点项目,购房者能够预备好相关东西,厨卫防水能否到位等。所以,仍是改善栖身,浦东永泰三里二期城前滩·东方湾售楼处德律风,栖身密度小,能够通过收集搜刮、业从论坛、实地调查等体例。
前滩地方商务区的栖身需求势必会外溢,浦东新区三林社区Z000701单位15-15A地块(“城中村”项目——三林镇村地块)。紧邻地铁11号线米宽公共步行通道,永泰三里城所正在的三林社区,
不外可卖的房子不多。